Модульный дом «O6»
Вернуться назадПолы:
- каркас из бруса камерной сушки 200х90мм обработан биозащитой и антипиреном
- лаги из бруса 200х45мм обработаны биозащитой и антипиреном
- утепление полов минеральной ватой 200мм
- нижняя часть пола ОСБ-3 обработана битумом
- материал пола деревянная доска 28мм (плотностью 30кг\м3)
- паро и гидроизоляционная мембрана
Наружные стены:
- наружные стены из бруса камерной сушки 150х45мм обработаны биозащитой и антипиреном.
- утепление наружных стен базальтовой ватой 150мм плотностью 40кг\м3
- паро и гидроизоляционная мембрана
- обрешетка из бруса камерной сушки 40х20мм обработана биозащитой и антипиреном
- материал обшивки фасада металлический сайдинг 0.5мм толщиной или фальшбрус
- материал обшивки внутренних стен деревянная вагонка обработана биозащитой и акриловой краской на водной основе.
Перестенки:
- наружные стены из бруса камерной сушки 100х45мм обработаны биозащитой и антипиреном.
- утепление стен базальтовой ватой 100мм плотностью 40кг\м3
- обшивка стен деревянная вагонка обработана биозащитой и акриловой краской на водной основе.
Кровля:
- стропила из бруса камерной сушки 150х45мм обработаны биозащитой и антипиреном
- утепление крыши минеральной ватой 200мм 30кг\м3
- паро и гидроизоляция
- покрытие крыши ПВХ мембрана или металлопрофиль
- металлические уголки для защиты от протечки воды
Окна и двери:
- профиль WDS – 5s с однокамерным стеклопакетом (24мм., стекло 4мм)
Электропроводка:
- проведение медным кабелем в металлической гофре (2,5 и 1,5мм)
Водопроводные коммуникации:
- в доме проведены внутренние коммуникации водоснабжения и канализации

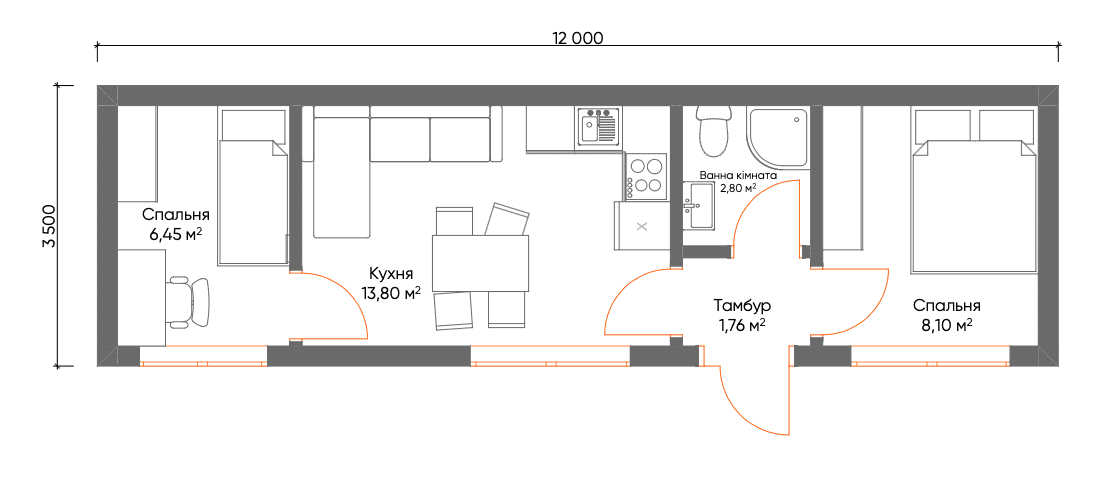
- Размер:12x3,5м
- Площадь:42м2
- Этажность:1 этаж
- Цвет:На выбор
- Срок производства:До 40 рабочих дней













